125 Diamond Street H, Arcadia, California 91006, Arcadia, 91006 - 4 bed, 3 bath

About this home
We found 3 Cons,5 Pros. Rank: price - $999.0K(44th), sqft - 2076(89th), beds - 4(56th), baths - 3(50th).
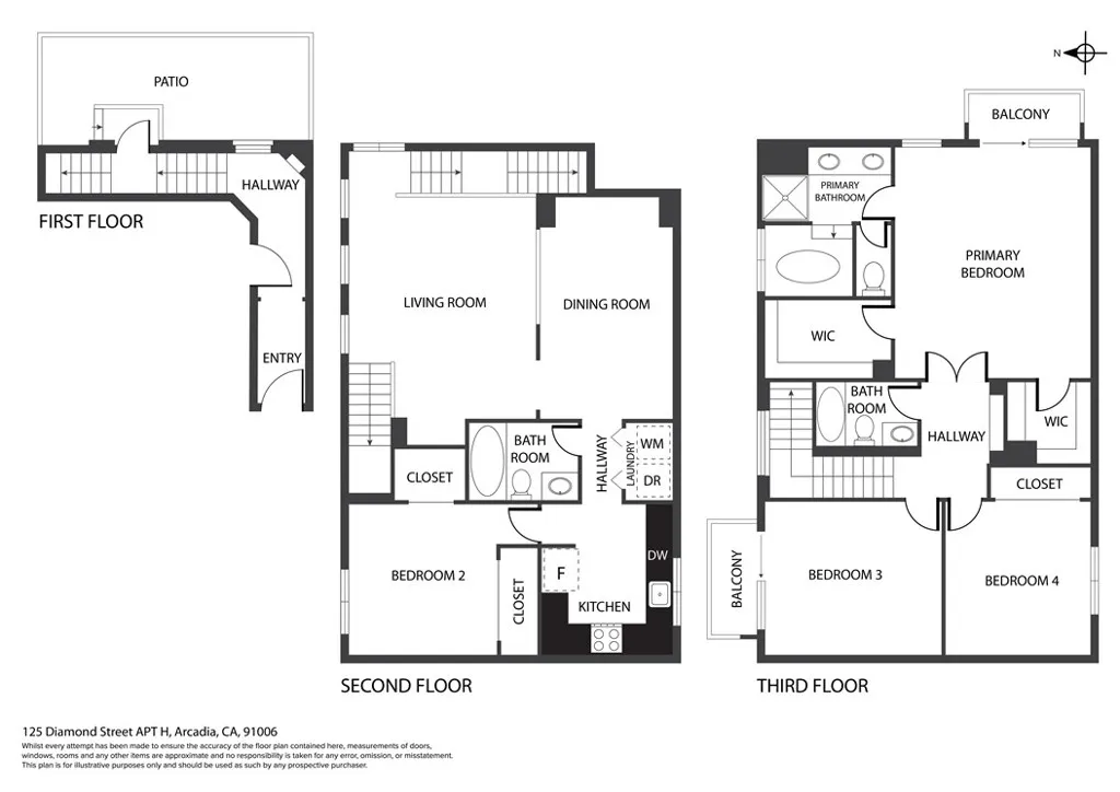
Discover this stylish, move-in-ready end-unit townhome that feels like a single-family residence—ideally situated in one of Arcadia’s most desirable neighborhoods with top-rated schools. The open-concept layout features high ceilings with crown molding, wood and tile flooring throughout, and abundant natural light, perfect for both entertaining and everyday living. The main level includes a spacious living room, formal dining with coffered ceilings, a full bathroom, and a versatile bedroom—ideal for guests or multi-generational living. The well- appointed kitchen boasts stainless steel appliances, granite countertops, matching backsplash, and ample cabinetry. A full-sized washer and dryer are conveniently located in a dedicated laundry nook. Upstairs, the expansive primary suite with balcony and mountain views impresses with coffered ceilings, dual walk-in closets, and a luxurious ensuite bath with a jacuzzi. Two additional rooms—one a large bedroom and the other a flexible bonus room with balcony and mountain views (ideal as a 4th bedroom or home office)—share a full hallway bath. All bathrooms are updated with granite vanities, sleek glass shower doors, and modern fixtures. The attached two-car garage includes extra storage and a Level 2 EV charger. Enjoy enhanced privacy, a generous backyard ideal for an urban-garden and BBQs. Centrally located near Arcadia schools, shopping, dining, golf, and major commuter routes—this is a home you don’t want to miss. Schedule your private tour today!



























