1449 W 45th Street, Los Angeles, California 90062, Los Angeles, 90062 - 4 bed, 2 bath

About this home
We found 4 Cons,5 Pros. Rank: price - $1.02M(61th), sqft - 1494(28th), beds - 4(61th), baths - 2(56th).
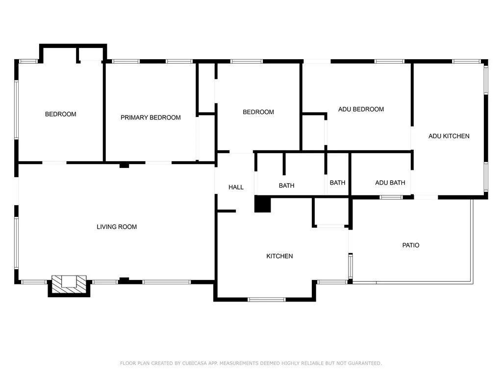
2025 Remodeled Craftsman DUPLEX boasts 3bed/1bath House, plus Huge 1bed/1bath Unit, plus 2-Car Detached Garage with Side Door Entry and Remote Roll-up door and Ready for ADU conversion! Located on the Prized 45th Street where homes are Rarely on the Market this Beauty offers a Long 8-Car Driveway with Two Covered Outdoor Entertainment Areas! A Terracotta Tiled Front Porch with Freshly Painted Railings overlooks a Lushly Landscaped Front Yard surrounded by a Wrought Iron and Block Wall Fence with Rollaway Driveway Gate. Superior Quality Basics in both the House and the Unit! Newer Roof with 50-Year Composite Shingles, New Plumbing, New Dedicated Electrical SubPanel, Central Air Conditioning, Rain Gutters, Sprinklers, and Solid Core Mahogany Front Door entry to the Huge Livingroom where Tall Windows with New Window Coverings, Recessed Lights and a Decorative Faux Fireplace showcase the Luxury Wood Laminate Floors and Fresh Paint throughout! Base & Crown Mouldings, Ceiling Fans, Security Windows, and New Window Coverings throughout! The Oversized Separate Formal Dining room offers a view to the Enclosed & Gated Covered Carport to enjoy outdoor fun even on rainy days! Remodeled Full Bathrooms with Trendy Wood Panel Decor, Bluetooth Speaker Lighting, and a Full Tub for a Relaxing Soak! Two Breathtaking Kitchen Remodels includes All New Slow-Close Cabinets, Gas Stove, Waterline for Fridge, Indoor Laundry Hookups, Tiled Flooring and Backdoor access to the Backyard. Covered Back Porch has 2 eight foot long Storage Benches and steps down to the grass yard next to the garage. Attached 1 Bedroom/1 Bath Unit with Gorgeous Remodeled Full Bath, Powerful Wall Heater, Backdoor to Private Side Yard, and a Remodeled Dine-In Kitchen with New Gas Stove, Slow-Close Cabinets, and Waterline for Fridge. Block Wall beside the Garage has a Solid & Locked Metal Door to access the alley, if needed. Close to Schools, Restaurants, Entertainment, Transportation and more! Don't miss this opportunity!


























































