1811 W Bay Avenue, Newport Beach, California 92663, Newport Beach, - bed, bath

About this home
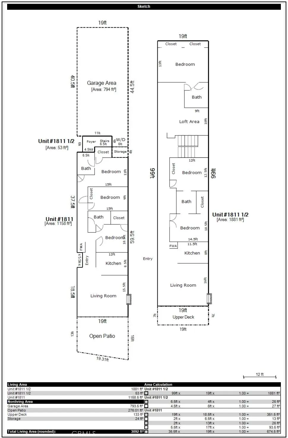
Welcome to 1811 W. Bay Ave, a rare bayfront duplex with a prime location directly in front of the tranquil sandy bay beach of picturesque Marina Park. This 6-bedroom, 4-bathroom property offers approximately 3,000 square feet of living space and includes a 4-car garage, presenting an incredible opportunity to create your ideal bayfront dream. Owned by the same family for over 60 years, this property is ready for your vision. Options abound: Investors: Rent out the existing two 3-bedroom, 2-bath units to maximize income, with combined rents approximated at $15,000/month in its current condition and with a little refresh, much more. Homeowners: Live in one unit and rent out the other, or transform the property into your very own bayfront home with additional income. Developers: Explore a condo conversion opportunity to create two separate residences. Short-term lodging is permissible (subject to permitting), adding flexibility to your investment. For those considering a 1031 exchange, this is an ideal candidate. BONUS OPPORTUNITY: The neighboring duplex at 1809 W. Bay is also available for sale, offering an exceptionally rare chance to own two side-by-side bayfront properties. Don’t miss this unique chance to secure a premier bayfront location with unlimited potential. Your coastal dream awaits!
| Subject | Average Home | Neighbourhood Ranking (24 Listings) | |
|---|---|---|---|
| Beds | 0 | 6 | |
| Baths | 0 | 4 | |
| Square foot | 3,092 | 2,467 | 88% |
| Lot Size | 3,250 | 2,614 | 80% |
| Price | $4.2M | $3.2M | 88% |
| Price per square foot | $1,358 | $1,397 | 48% |
| Built year | 1968 | 1965 | 52% |
| HOA | |||
| Days on market | 504 | 181 | 96% |

