245 N Evans Street, Banning, California 92220, Banning, 92220 - 2 bed, 2 bath

About this home
Possibly Over-Priced:The estimated price is 7% below the list price. We found 3 Cons,5 Pros. Rank: price - $599.9K(92th), sqft - 1222(13th), beds - 2(40th), baths - 2(50th).
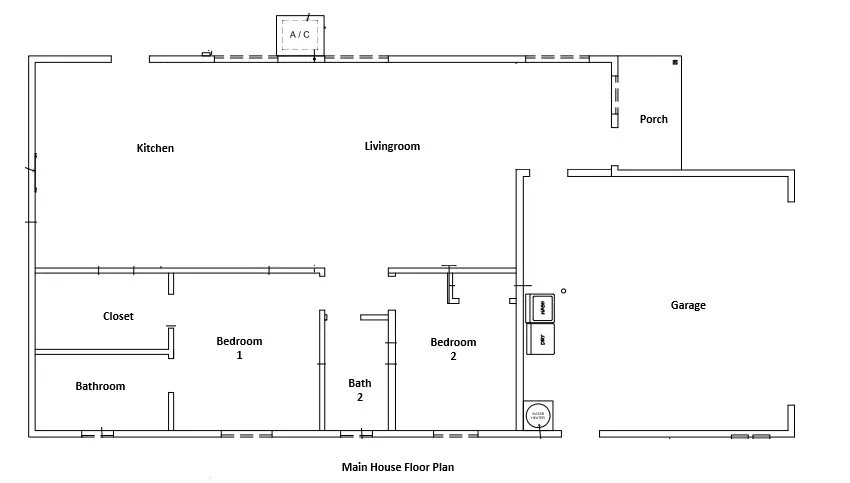
Your opportunity to own a BRAND new home plus an Accessory Dwelling unit (ADU)! The home is a 2 bedroom, 2 bath 1,222 sq ft home with a 2 car garage. Walk in closet in the main bedroom. The ADU is a 2 bedroom, 1 bath 922 sq ft ADU. Both are smartly designed for comfortable living! The kitchen and baths will come with White Shaker style cabinets and white quartz counter tops. The exterior walls are made with 2x6 lumber and filled with insulation. The windows are dual pane windows. New technology to keep your home cool in the summer and warm in the winter. The solar production system is fully paid for and will be owned by you with no payments to anyone for the power it produces. The home and ADU both have vinyl flooring throughout. They are currently under construction BUT we ARE now ready for showings. There is still work needed to be done to complete the project which is on going. Yet, you can come see it for yourself now to make it yours before someone else does.
























