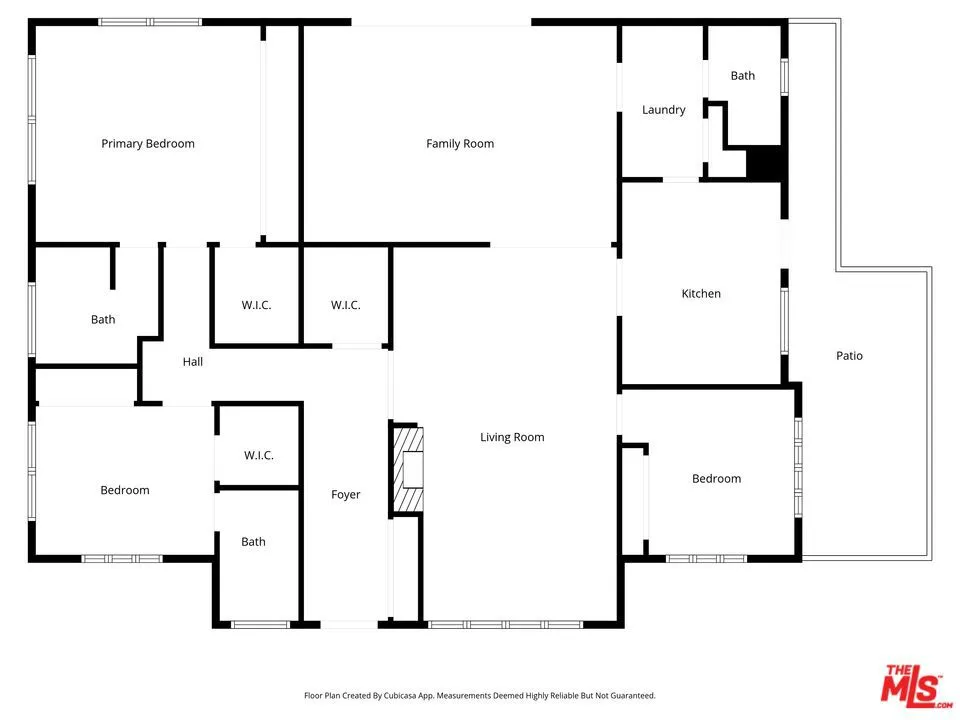
3704 Lorado Way, View Park, California 90043, View Park, 90043 - 3 bed, 3 bath

About this home
Great Deal:The estimated price is 15% above the list price. We found 5 Cons,6 Pros. Rank: price - $1.35M(87th), sqft - 1926(78th), beds - 3(50th), baths - 3(69th).
Discover a standout blend of style, comfort, and convenience in this beautifully reimagined gem, set on an impressive 10,938 sq ft corner lot in the heart of coveted View Park with plenty of room to add your dream pool! Step inside and feel the vibe instantly: sun-drenched living spaces, an airy flow, and a charming brick fireplace that anchors the home with warmth and character. The dining room opens straight out to a sprawling backyard designed for unforgettable gatherings, offering endless potential for entertaining, relaxing, or future expansion. Just off the kitchen complete with a charming garden window a cozy deck awaits. It's the perfect nook for al fresco dinners or slow, easy mornings under the California sunshine. With three generously sized bedrooms, including two en-suites, plus gleaming hardwood floors throughout, this home is truly move-in ready. A spacious two-car garage adds even more comfort and storage options. All of this sits moments from LAX, Kenneth Hahn Park, the metro line, and a variety of shops, cafes, and restaurants. Lifestyle, location, and value all come together right here. If you've been searching for the one welcome home. This is it. Photos have been virtually staged




























