421 Mariposa Avenue, Sierra Madre, California 91024, Sierra Madre, 91024 - 4 bed, 3 bath

About this home
Possibly Over-Priced:The estimated price is 17% below the list price. We found 3 Cons,5 Pros. Rank: price - $2.20M(82th), sqft - 2015(52th), beds - 4(59th), baths - 3(50th).
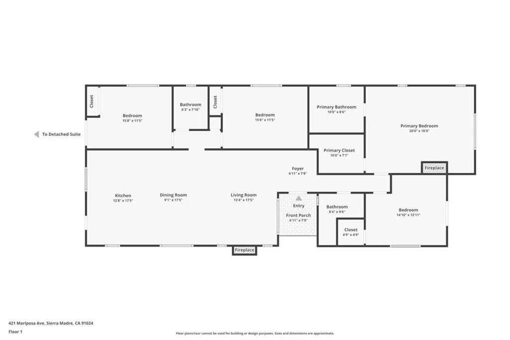
2 Homes on one Lot! A stunning modern retreat in the heart of Sierra Madre with a completely reimagined front house and a newly built ADU. The main residence boasts 4-bedrooms, 3-bathrooms across 2,015 SqFt. ADU with 2-bedrooms, 2-bathrooms with 871 SqFt. The expansive living room, complete with a cozy fireplace, is filled with natural light, creating a welcoming atmosphere. The gourmet chef’s kitchen is a true highlight, featuring a large center island, stainless-steel appliances, luxurious Carrera marble countertops, and custom cabinetry—perfect for both everyday living and entertaining. The primary suite offers a private retreat, featuring a generously sized layout with fireplace and custom-built walk-in closet, a spa-inspired en-suite bathroom with a glass-enclosed shower for the ultimate in luxury and convenience. Across the primary is a large bedroom with a private deck and built-in closet. As you explore the outside, an entertainer’s paradise awaits. Beneath a stylish pergola, a custom-built outdoor kitchen island with granite countertops features a 32-inch BBQ grill, fridge, double side burner, sink, and bar seating. This outdoor space is designed for enjoying al fresco dining, while the built-in fire-pit offers warmth and ambiance, creating the perfect setting to relax and unwind under the stars. Adding even more value, a separate, newly built ADU providing incredible flexibility—perfect for multi-generational living, rental income, or a private guest suite. With its own kitchen, modern finishes, and dedicated living space, the ADU offers endless possibilities. Additional highlights for both residences include brand new roof, new electric panels, new 4-ton and 3-ton AC’s, washer/dryer, fire sprinklers, top-quality windows & sliding doors from Andersen, newly stamped concrete driveway and so much more!

























































