676 Rhine Rd., Lake Arrowhead, California 92391, Lake Arrowhead, - bed, bath

About this home
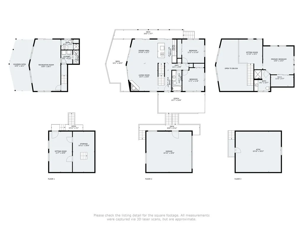
LAKE RIGHTS! Super cool Prow style home located on over 1/3rd acre with ALREADY built structures ready to convert to ADU's. Ground level home over 2,000sf, 4bd/3baths, soaring beamed ceilings, walls of glass, rock fire place, and a wrap-around deck. Open-style kitchen with an island and direct access to the deck. The home is perfect for entertaining! Main floor offers 2 bedrooms and 1 full bathroom. Top floor has a loft/lounge area plus an extra large Primary suite with beamed vaulted ceilings and a separate bathroom. The lower level has a ginormous room that can be another Primary suite or family room with another bathroom. Direct access to the secured back yard, and a park-like setting with fabulous evergreens and a seasonal stream. Parking for at least 6 cars PLUS a HUGE custom built 3 story structure that offers a XTRA large 2 car garage, a huge enclosed area above the garage(possible ADU) and an expansive workshop underneath the garage(possible Junior ADU). Home is currently used as a part-time AirBnB and is approved to sleep 12 people comfortably. Tons of possibilities and truly a one-of-a-kind! Must see!
Nearby schools
Price History
| Subject | Average Home | Neighbourhood Ranking (214 Listings) | |
|---|---|---|---|
| Beds | 4 | 3 | 55% |
| Baths | 3 | 3 | 50% |
| Square foot | 2,024 | 1,977 | 53% |
| Lot Size | 16,000 | 9,770 | 92% |
| Price | $649K | $668K | 44% |
| Price per square foot | $321 | $348 | 41% |
| Built year | 1979 | 1976 | 60% |
| HOA | $1,800 | ||
| Days on market | 47 | 176 | 3% |

