67860 Via Seguro, Cathedral City, California 92234, Cathedral City, 92234 - 3 bed, 3 bath

About this home
We found 3 Cons,5 Pros. Rank: price - $649.0K(76th), sqft - 1851(56th), beds - 3(50th), baths - 3(56th).
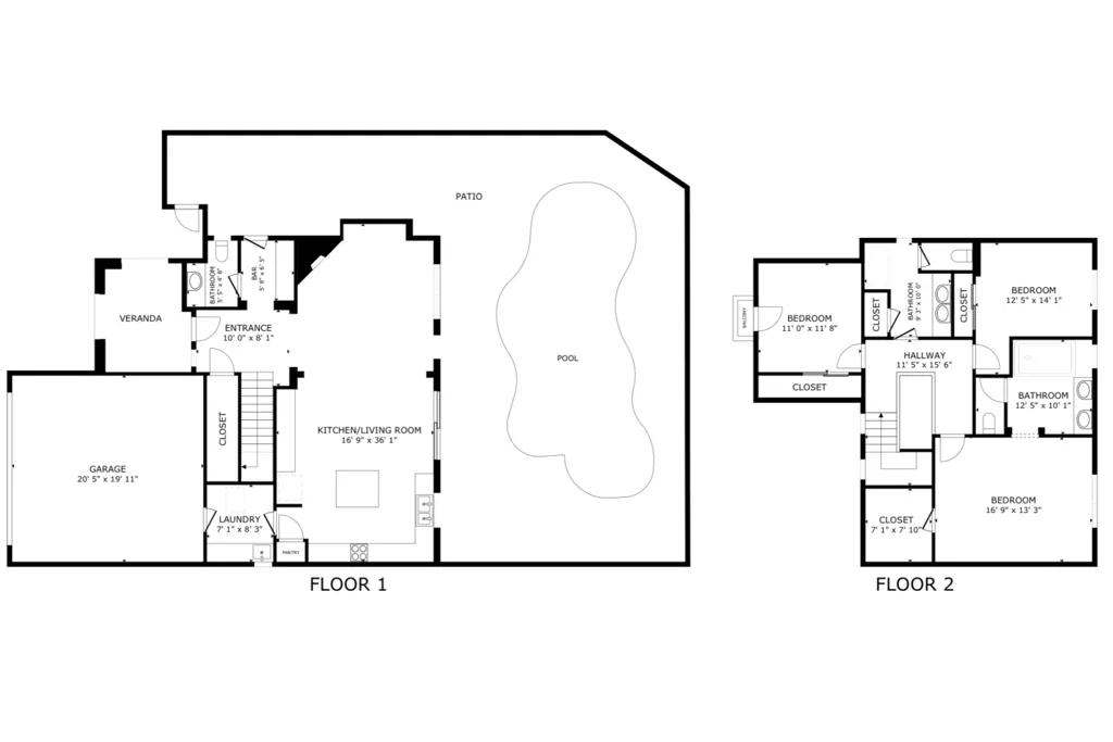
Welcome to Cimarron Cove, one of Cathedral City's most sought-after gated communities. This beautifully maintained 3-bedroom, 2.5-bath home offers 1,851 ft. of light-filled living with recently updated finishes throughout. The open floor plan features a spacious great room with fireplace, a stylish kitchen with ample storage, and seamless indoor-outdoor flow.Sleek style and sophistication set against breathtaking mountain views, enjoy peace of mind with recently installed solar, fresh landscaping, and a private backyard with pool and spa--perfect for entertaining. The primary suite offers a spa-like bath, while two guest bedrooms provide comfort and flexibility. Additional highlights include a two-car garage, indoor laundry, and energy-efficient upgrades.Cimarron Cove residents enjoy a sparkling pool, spa, and manicured grounds--all just minutes from shopping, dining, golf, and downtown Palm Springs. This move-in ready gem blends style, efficiency, and an unbeatable location.




















































