681 Castlehill Drive, Walnut, California 91789, Walnut, 91789 - 4 bed, 5 bath

About this home
Possibly Over-Priced:The estimated price is 9% below the list price. We found 3 Cons,5 Pros. Rank: price - $1.99M(88th), sqft - 2858(82th), beds - 4(50th), baths - 5(89th).
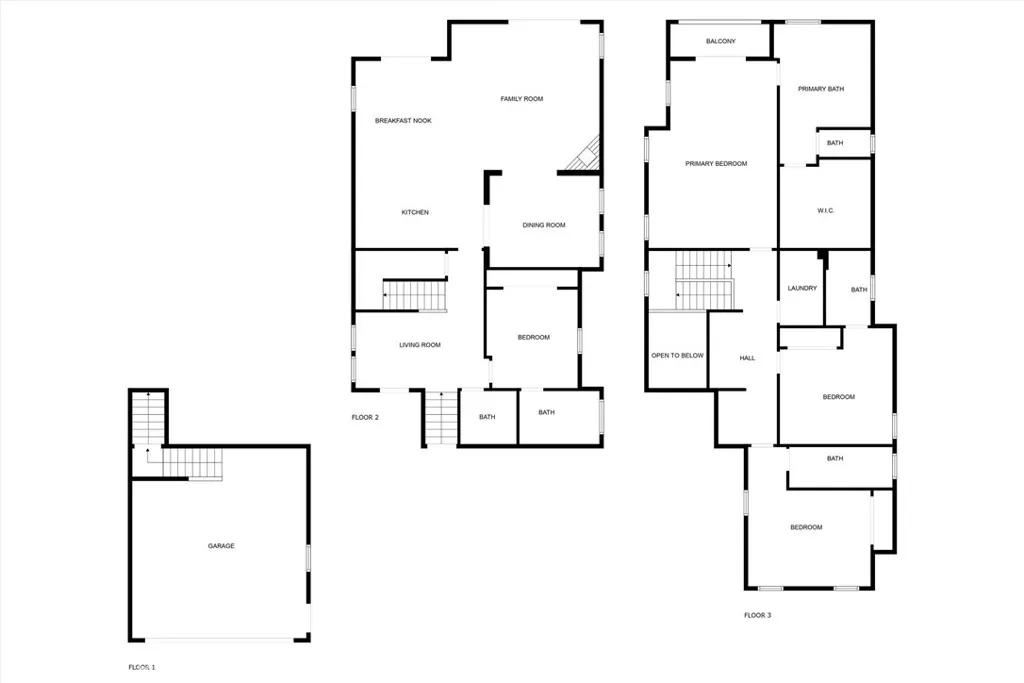
Welcome to this exclusive new development of six luxury single family residences in the prestigious City of Walnut, known for its award winning Walnut Valley Unified School District. Each estate features stunning views, expansive backyards over 10,000 sqft, and the potential for an ADU. The model home offers 2,858 sqft of elegant living space on a 13,120 sqft lot with 4 bedrooms and 4.5 bathrooms. All six homes range from 2,432 to 2,900 sqft, designed for comfort, natural light, and spacious living. Step inside to a bright foyer with sleek iron railings, luxury vinyl plank flooring, and high ceilings. The open concept main level seamlessly connects the living, dining, and kitchen areas. The gourmet kitchen boasts high end stainless steel appliances, quartz countertops, a large center island, and custom cabinetry. Expansive windows bring in natural light, and sliding glass doors open to landscaped backyards with lush lawns, pergola covered patios, and hillside views. A modern gas fireplace enhances the living area. Upstairs, the primary suite is a luxurious retreat with dual vanities, a walk in shower, a freestanding soaking tub, and a spacious walk in closet. Additional bedrooms are generously sized with large windows, and one features a private en suite bath. The junior suite on the main level includes its own bathroom, perfect for guests or multi generational living. Landscaped with terraced retaining walls, the property showcases stunning hillside views. Each home includes a two car garage with a stone facade and a private side yard for relaxation or gardening. There is no HOA and no Mello Roos, providing luxury living without extra fees. Located near major highways, shopping centers, and top schools, this community is perfect for those seeking modern luxury in a prime location. Schedule your private tour today to experience the elegance and breathtaking views of these exceptional properties.





























