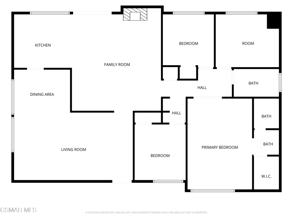
6816 Cordially Way, Elk Grove, CA 95757, Elk Grove, 95757 - 3 bed, 3 bath

About this home
We found 5 Cons,5 Pros. Rank: price - $900.0K(93th), sqft - 0(1th), beds - 3(34th), baths - 3(50th).
Welcome to 2149 Stoneman, a beautifully updated 4-bedroom, 2-bath home offering 1,800 square feet of comfortable, open-concept living in one of Simi Valley's most convenient locations. Ideally perched on the upper part of the neighborhood, this home enjoys peaceful views of the Simi foothills while keeping you close to all your day-to-day conveniences and just moments from Atherwood Park. Inside, fresh paint, smooth ceilings, and crown molding create a warm, inviting feel. The open floorplan flows easily from room to room, making everyday living and entertaining a breeze. Practical upgrades include a fully owned solar system and a whole-house Generac generator that keeps the home powered during outages--true peace of mind. The backyard is a standout feature, offering privacy, mature trees, and a generously usable space. A sun-exposed slope is perfect for raised garden beds or fruit trees, and the SofTub hot tub adds a relaxing touch to your outdoor retreat. With its ideal location, thoughtful upgrades, and welcoming layout, 2149 Stoneman is move-in ready and full of potential.



























