79100 Montego Bay Drive, Bermuda Dunes, California 92203, Bermuda Dunes, 92203 - 4 bed, 5 bath

About this home
We found 3 Cons,6 Pros. Rank: price - $1.43M(99th), sqft - 5288(99th), beds - 4(66th), baths - 5(96th).
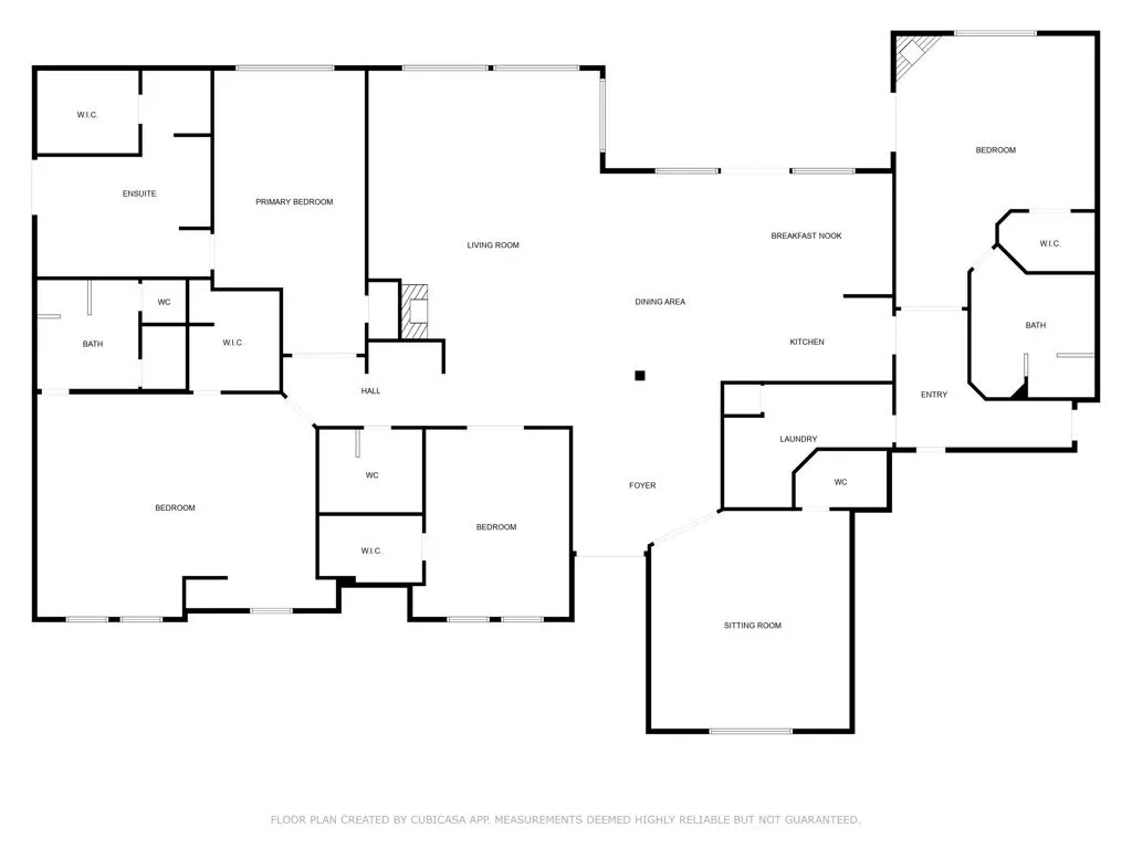
Nestled against the picturesque backdrop of the Bob Hope Classic Golf Course, this exquisite home boasts mesmerizing views of the 18th and 1st fairways alongside breathtaking mountain views. Designed with a thoughtful split floor plan, this property is ideal for a large family or those who love to entertain. The impressive double-glass door entry flows to a spacious great room featuring a cozy fireplace, which seamlessly connects the open-concept design to the dining area and kitchen, creating the perfect environment for gathering. The home features three oversized primary bedrooms with their own ensuite bathrooms and walk-in closets offering both privacy and comfort. A fourth bedroom provides flexibility, doubling as an office or study. The family room or den is a true multifunctional space--it can serve as a fifth bedroom with a half bath or be easily transformed into a second two-car garage. This home truly shines in its outdoor offerings with a covered patio, saltwater pool and spa, a soothing fountain, and a covered cabana outfitted with BBQ, sink, and granite bar. It's not just a home, it is a lifestyle. Partially Furnished and move-in ready.
























































