9074 Olive St, Fontana, California 92335, Fontana, - bed, bath

About this home
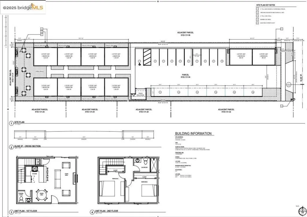
Huge Development Opportunity in Prime Fontana Location! Plans Nearly Approved – Build a 10-Unit Apartment Complex! Lot Size: 0.43 Acres | 18,900 Sq Ft. Calling all investors, builders, and developers! This rare Fontana gem is a prime opportunity to build a high-demand multi-family project on a spacious 0.43-acre lot. The current owners have invested over $50,000 and more than 2+ years of effort to secure critical approvals — including PAM (Plan of Action and Mitigation) approval. Only the Design Review phase remains before you're ready to break ground on a 10-unit apartment complex, with each unit designed as a 2-bedroom, 2-bathroom layout. ? Property Highlights: PAM Approved – Major milestone completed! 10-Unit Apartment Plan – Each unit: 2 bed / 2 bath. Only Design Review Left – Nearly shovel-ready. $50K+ Already Invested in Approvals – Save 2+ years of time and $50K+ money. Large Lot (18,900 sq ft) – Room for parking, landscaping, or amenities. Centrally located near schools, parks, shopping, and major freeways. Existing 2 bed / 1 bath home (1,095 sq ft) currently on site – great for staging or rental during development. Tremendous Land Value in a fast-growing market. This is YOUR chance to develop a high-yield income producing 10+ units property.
| Subject | Average Home | Neighbourhood Ranking (110 Listings) | |
|---|---|---|---|
| Beds | 2 | 3 | 14% |
| Baths | 1 | 2 | 24% |
| Square foot | 1,095 | 1,329 | 25% |
| Lot Size | 18,900 | 8,505 | 90% |
| Price | $749K | $565K | 92% |
| Price per square foot | $684 | $425 | 95% |
| Built year | 1922 | 1957 | 1% |
| HOA | |||
| Days on market | 200 | 163 | 69% |

